Забудова “Баляша-Хмельницького” біля Юрковиці опинилася під загрозою: відкрили кримінальну справу

Забудова “Баляша-Хмельницького” біля Юрковиці опинилася під загрозою: відкрили кримінальну справу
У столиці продовжуються скандали навколо будівництва ЖК “Ріхерт & Парк” біля схилу гори Юрковиця, яке планують компанії з орбіти бізнесменів Василя Хмельницького та Олега Баляша (на колажі в центрі та праворуч відповідно).
Не дивлячись на те, що забудовники начебто змогли знайти компроміс із місцевою громадою, зокрема пообіцявши їй облаштувати великий парк поруч, згодні не всі. Наприклад, адвокат Олександр Дядюк в рамках двох судових справ вимагає скасування МУО на проєктування будівництва та “першого” дозволу на проведення цих робіт від ДАБІ. Серед іншого, він вказує на те, що в чиновники КМДА не вказали в “містобудах” чіткі параметри висотності майбутніх будинків, що замовник робіт – ТОВ “Керамблоки-Інвест” – не отримав необхідні погодження від органів охорони культурної спадщини, що будувати житло в цій локації можна лише в рамках певних “лімітів” тощо. Схожі претензії до “перспективного” ЖК мають і правоохоронці – нещодавно вони в рамках слідства добилися накладення арешту на 10,7 га землі, які збираються освоювати забудовники.
Як стало відомо КВ, найближчим часом у столичних судах має розпочатися розгляд двох судових справ, які стосуються будівництва житлового комплексу (ЖК) “Ріхерт & Парк” на території площею 10,7 га у Подільському районі Києва (проєкт девелопера “A Development”).
Йдеться про позови, які цьогоріч були подані до Шевченківського районного суду Києва столичним адвокатом і правозахисником Олександром Дядюком і які станом на сьогодні ще не розглянуті по суті.
Так, в рамках першої цивільної справи Дядюк вимагає визнати незаконними і скасувати містобудівні умови та обмеження (МУО) на проєктування будівництва житлового комплексу з об’єктами соціального та громадського призначення та підземним паркінгом в межах вулиць Фрунзе (нова назва – Кирилівська), Нижньоюрківської та пров. Мильного, які були видані Департаментом містобудування та архітектури Київської міськдержадміністрації (КМДА, цей структурний підрозділ є відповідачем у даній справі) ще у липні 2014 року.
В рамках другого судового спору Олександр Дядюк оскаржує дозвіл на виконання будівельних робіт за вказаною адресою, який Державна архітектурно-будівельна інспекція (ДАБІ) видала компанії ТОВ “Керамблоки-Інвест” у серпні 2021 року. ДАБІ була ліквідована у вересні 2021 року, а тому відповідачем є нова структура, яка прийшла їй на зміну – Державна інспекція архітектури та містобудування (ДІАМ).
Як повідомив Олександр Дядюк, наразі провадження за цими позовами ще не відкриті. Це пов’язано з тим, що в суді вважають, що такі справи повинні розглядатися в порядку адміністративного судочинства – тобто, позови мають бути подані до Київського окружного адмінсуду (КОАС). За словами адвоката, спочатку він планує дочекатися остаточного вердикту стосовно того, у якому суді має розглядатися справа по “містобудам”, щоб надалі також направити до КОАС і позов щодо скасування дозволу на будівництво, адже в такому випадку справи розглядаються за схожою процедурою.
Щодо вимог позивача
Олександр Дядюк розповів, що його вимоги стосовно скасування МУО пов’язані з тим, що в цьому документі не було зазначено максимальну висоту будівель, які можна проєктувати для будівництва. На переконання адвоката, забудовники насправді мають право зводити на цій території будинки не вище 15-27 метрів, адже ця ділянка знаходиться в межах пам’ятки ландшафту, історії місцевого значення “Історичний ландшафт Київський гір та долини р.Дніпро”.
Дядюк підкреслює, що та висотність, яку він зазначив, була встановлена для цієї пам’ятки столичною владою в 2019 році, але надалі, у 2022, КМДА на незрозумілих підставах збільшила показники – до 42 метрів включно. За словами адвоката, цілком можливо, йому доведеться оскаржувати і таке рішення столичної влади, адже він також має сумніви щодо його законності (про нього мова йтиме ничже. – ЗМІ).
Що стосується вищезгаданого дозволу на будівництво, то, на переконання Дядюка, ДАБІ не мала права його видавати, зокрема – через відсутність деяких погоджень і документів. Зокрема, адвокат вказав на те, що проєкт будівництва вказаного ЖК не було погоджено з Департаментом охорони культурної спадщини КМДА, хоча така вимога була прописана в МУО. Також Олександр Дядюк має сумніви щодо існування історико-містобудівного обґрунтування по майбутній забудові, отримання якого вимагали ті ж МУО і яке начебто було видано Міністерством культури та інформаційної політики в 2016 році. Справа в тому, що Мінкульт повідомив про видачу цього документу, але не надав Олександру Дядюку його копію.
Крім того, позивач зазначив, що вказана ділянка, згідно з Генеральним планом Києва, відноситься за функціональним призначенням до території громадських будівель та споруд та вулиць і доріг, але дозвіл виданий на будівництво житлових будинків. Дядюк підкреслив, що ДАБІ теоретично могла видати дозвіл на будівництво тільки т. зв. “багатофункціонального комплексу” (БФК), у якому можна було б передбачити певну кількість квартир, але їхня площа не повинна була б перевищувати площу приміщень громадського призначення. Але у цьому випадку, не йдеться навіть про БФК.
Щодо землевідведення і МУО
Земельна ділянка площею 10,7 га в межах вулиць Фрунзе, Нижньоюрківської та пров. Мильного була передана в оренду ТОВ “Керамблоки-Інвест” відповідно до рішення Господарського суду Києва від 19 жовтня 2006 року по справі №2/569. Цей судовий вердикт відсутній у відкритому доступі, а тому наразі важко встановити, на яких підставах компанія отримала цю землю і чому була застосована саме процедура її відводу “через суд”, а не через рішення Київради. На той час ця це була одна ділянка, яка мала цільове призначення “для будівництва житлового комплексу з об’єктами соціального і громадського призначення і підземним паркінгом”. 27 грудня того ж року між столичною міськрадою і ТОВ “Керамблоки-Інвест” було укладено договір цієї ділянки на термін 5 років.
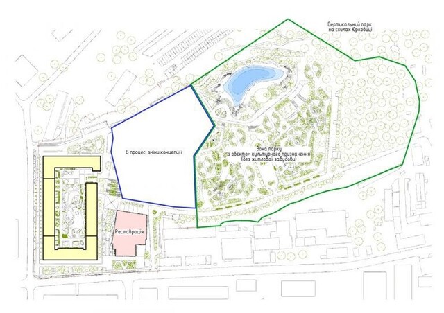
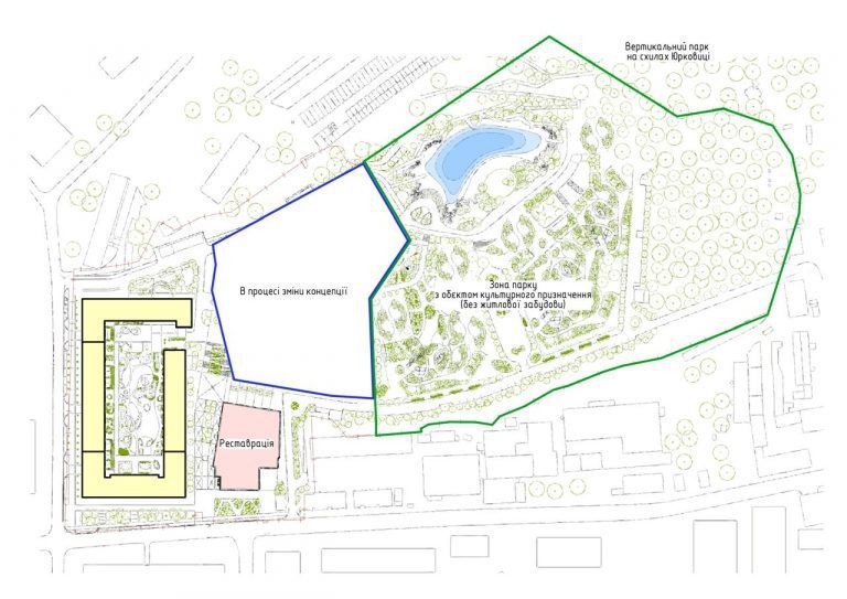
Ділянка на карті
У середині 2007 року компанія звернулася до Київради з клопотанням щодо поновлення цієї угоди на термін 10 років, але муніципалітет не прийняв жодного рішення з цього приводу – ні щодо погодження, ні щодо відмови у такій пролонгації. А тому ТОВ “Керамблоки-Інвест” знову звернулося до Господарського суду Києва – цього разу з позовом стосовно того, щоб у договорі було встановлено термін оренди 15 років (“початкові” 5 років плюс “додаткові” 10 років. – ЗМІ). І врешті-решт 7 вересня 2007 року столичний госпсуд задовольнив такі вимоги.
Фактично причиною стало те, що орендною угодою від 27 грудня 2006-го було передбачено, що орендар не пізніше ніж за три місяці до кінця терміну оренди може звернутися до столичної влади з приводу поновлення договору за умови, якщо він повністю виконує всі його умови. На переконання суду, в даному випадку умови були виконані – зокрема, орендар сплачував орендну плату та розпочав проєктні роботи щодо подальшої забудови.
А вже у вересні 2013 року ТОВ “Керамблоки-Інвест” направило до того ж суду ще один позов – щодо виключення з орендної угоди низки пунктів. Зокрема, у компанії не погоджувалися з пунктами про те, що одночасно зі спорудженням житлового комплексу вона має почати будівництво на цій території об’єктів соціальної сфери (дитячі дошкільні заклади, загальноосвітні школи, об’єкти охорони здоров’я тощо); що ТОВ “Керамблоки-Інвест” має передати Головному управлінню житлового забезпечення КМДА 12% загальної площі житлового комплексу і що до моменту здачі будинків у експлуатацію компанія має сплатити до бюджету Києва 5% вартості будівництва.
Свою незгоду з цими пунктами у ТОВці пояснили тим, що, згідно з вимогами Закону України «Про регулювання містобудівної діяльності», в нашій державі “було встановлено заборону органам місцевого самоврядування вимагати від замовника будівництва надання будь-яких послуг та передачі матеріальних або нематеріальних активів”. Таких аргументів компанії вистачило – 26 листопада 2013 року столичний госпсуд задовольнив її позов.
Отримання будівельних дозволів
4 липня 2014 року Департамент містобудування та архітектури КМДА видав ТОВ “Керамблоки-Інвест” вищезгадані МУО на проєктування будівництва житлового комплексу з об’єктами соціального та громадського призначення та підземним паркінгом в межах вулиць Фрунзе, Нижньоюрківської та пров. Мильного.
Як зазначалося вище, у цьому документі, серед іншого, не було вказано остаточну висоту будівель, які можна проєктувати для будівництва – лише зазначалося, що вона має бути визначена на підставі висновків історико-містобудівного обґрунтування і що у випадку перевищення висоти 50 метрів ці показники треба погодити з Міністерством оборони України, ДП “Украерорух”, Державіаслужбою України тощо. При цьому, даними МУО було передбачено, що проєктування та будівництво потрібно проводити чергами – попередньо йшлося про 3 черги будівництва.
Також в “містобудах” вказувалося, що ділянка проєктування знаходиться в центральному історичному ареалі, в межах археологічної охоронної зони, зони охоронюваного ландшафту (історичний ландшафт Київських гір та долини р. Дніпро) і в межах охоронної зони пам’ятки археології національного значення Лиса гора (Юрковиця). У зв’язку з цим, на ТОВ “Керамблоки-Інвест” було покладено зобов’язання погодити проєктну документацію з органами охорони культурної спадщини.
Крім того, “містобудами” було передбачено, що при подальшій забудові мають бути дотримані вимоги протизсувного режиму (у відкритих джерелах є інформація, що близько половини ділянки потрапляє до зсувонебезпечної території. – ЗМІ) і що частина ділянки потрапляє до території зелених насаджень загального користування, а тому може бути використана тільки під благоустрій території без права забудови.
У 2020 році ТОВ “Керамблоки-Інвест” почало процес збору дозволів на проведення будівельних робіт – забудовник вирішив зводити свої житлові висотки у декілька черг. При цьому, процес отримання погоджень для компанії, судячи з усього, був складним. Наприклад, дозвіл на І чергу будівництва було отримано лише у серпні 2021 року – саме його наразі оскаржує Олександр Дядюк.
Разом з тим, видачі дозволу передували дві відмови, які були обгрунтовані тим, що в пакетах документів, які “Керамблоки-Інвест” подавало до ДАБІ, був відсутній висновок з оцінки впливу на довкілля, що в проєкті забудови не було дотримано санітарно-захисні зони (зокрема, не витримано відстань 12 м від дитячих майданчиків до внутрішньоквартальних проїздів, не дотримано відстань 20 м від майданчиків для господарського призначення до майданчиків для відпочинку дорослого населення тощо).
Рендер ЖК “Ріхерт & Парк”
“Крайні” два дозволи були видані вже Державною інспекцією архітектури та містобудування (ДІАМ, прийшла на зміну ліквідованої ДАБІ) – вони датовані серпнем 2024 року і стосуються ІІІ та ІV черг будівництва. Усього, за інформацією профільних інтернет-порталів про нерухомість, в рамках ЖК “Ріхерт & Парк” планується зведення 11 будинків висотою 7-12 поверхів, а генеральним підрядником будівництва було зазначено ТОВ “Таврос Констракшн”.
Про скандали
У останні роки столична громадськість неодноразово виступала проти забудови цієї території. Наприклад, у листопаді 2021 року громадська організація (ГО) “Космос Табір” звернулася до КМДА із проханням не продовжувати з ТОВ “Керамблоки-Інвест” договір оренди вказаної ділянки, а також – накласти на цю компанію штрафні санкції за численні порушення умов угоди та сприяння у руйнуванні пам’ятника архітектури місцевого значення “Пивзавод Ріхерта”. Також активісти попросили столичну мерію змінити цільове призначення зазначеної землі з “під забудову” на “зелену зону та рекреаційну територію” та створити на ній парк “Юрковиця”.
Зазначимо, що пивзавод Ріхерта, який згадали активісти, знаходиться на сусідній ділянці. Він був побудований у 70-х роках ХІХ століття, і включає в себе низку будівель та споруд, які, за свідченнями численних джерел, знаходяться в стані руйнації.
Втім, фактично клопотання громадських активістів міська влада проігнорувала, адже 2 листопада 2023 року Київрада рішенням №7190/7231 погодила поновлення договору оренди ділянки під майбутнім ЖК “Ріхерт & Парк” ще на ‘15 років. При цьому, у відповідному проєкті рішення, який було затверджено депутатським корпусом, не було жодної згадки про будь-які обмеження щодо майбутньої забудови з огляду на те, що ділянка знаходиться в межах “Історичного ландшафту Київських гір і долини р. Дніпра” – у документі лише зазначалося, що на цій території влаштовується будівельний майданчик і виконуються підготовчі роботи до будівництва (планувальні роботи, демонтаж будівель).
При цьому, незадовго до вказаної пролонгації запланованим будівництвом на вказаній території зацікавилися правоохоронні органи. Так, 18 березня 2021 року Подільське управління Нацполіції Києва відкрило кримінальне провадження за фактами можливих порушень при видачі документів, які погоджують ці роботи. Попередньо дії можливих фігурантів даної справи були кваліфіковані за ст. 356 (самоправство) і ч. 1 ст. 367 (службова недбалість) Кримінального кодексу (КК) України.
У ході цього слідства правоохоронці встановили, що у вищезгаданих МУО було перевищено показники висотності майбутніх будинків на згаданій ділянці. Що цікаво, дані показники слідчі порівнюють з тими, які зазначені в документах, що були затверджені столичною пізніше видачі цих “містобудів”. До слова, саме ці документи, можливо, буде оспорювати Олександр Дядюк.
Зокрема, йдеться про наказ Департаменту охорони культурної спадщини КМДА №86 від 18 грудня 2019 року, яким у зоні охорони пам’ятки ландшафту та історії місцевого значення “Історичний ландшафт Київських гір і долини р. Дніпра” було встановлено максимальну висоту будівель на рівні 15 та 27 м. При цьому, правоохоронцям стало відомо, що 24 травня 2022 року той же департамент своїм наказом №83 спочатку скасував вищезгаданий наказ, а далі, наказом №84, встановив на території зазначеної пам’ятки нові режими з трьома зонами регулювання забудови і дозволеною висотою для них 27, 36 та 42 метрів.
Також в рамках цього розслідування слідчі звернули увагу на те, що після вищезгаданого поновлення договору оренди, із ділянки з кадастровим номером 8000000000:85:311:0033 почався виділ двох ділянок – з кадастровими номерами 8000000000:85:311:0031 (площа 4,8 га) і 8000000000:85:311:0032 (площа 5,9 га). Хто саме і на яких підставах це зробив, у судових ухвалах по цій справі не уточнюється, але важливим є той факт, що наразі відсутні точні дані стосовно того, чи було завершено цей поділ. При цьому, правоохоронці зазначили, що у даному випадку, можливо, йдеться про спроби “виведення землі з-під статусу “пам’ятки ландшафту”.
18 листопада 2024 року Подільський районний суд Києва за клопотанням правоохоронців наклав арешт на згадані дві ділянки. Це було зроблено, зокрема, для з’ясування причин поділу цієї землі та унеможливлення продовження будівництва.
При цьому, саме в 2024 році столична громадськість вийшла на пік своєї активності в питанні спроб недопущення забудови вказаної території. Так, мешканці Києва подали як мінімум дві петиції до Київради, у яких, зокрема, активісти просили визнати недійсним договір оренди вказаної землі та створити на ній рекреаційний парк “Юрковиця”. Більше того – кияни навіть направили петицію до президента Володимира Зеленського, попросивши його посприяти створенню національного парку “Київські пагорби”, до якого має бути включена гора Юрковиця з пивзаводом Ріхтера. В усіх випадках аргументи активістів були схожими: мовляв, забудовники можуть знищити старовинні будівлі, місцеві мешканці хочуть бачити на цій території зелену зону тощо.
Усі ці петиції в результаті набрали необхідну для їхнього розгляду кількість голосів. І, схоже, в тій чи іншій мірі мали результат. Справа в тому, що 18 вересня 2024 року між ТОВ “Керамблоки-Інвест” і представниками громадськості було укладено меморандум, згідно з яким землекористувач пообіцяв місцевим мешканцям здійснити благоустрій парку на цій території.
У відкритому доступі цей документ відсутній, але у відкритих джерелах є інформація, що цю зелену зону забудовник пообіцяв облаштувати на частині орендованої землі площею 5,85 га (тобто, фактично підтверджується поділ землі, на якому наголошували правоохоронці. – ЗМІ). Також у ТОВ “Керамблоки-Інвест” погодилися профінансувати облаштування “загальнодоступного вертикального парку в ареалі схилів гори Юрковиця площею в 6,5 га (це сусідня ділянка, яка не знаходиться в користуванні забудовника. – ЗМІ), який включатиме прогулянкові зони та оглядові тераси і буде передано на баланс КО “Київзеленбуд”.
Умовний план щодо використання цієї території від забудовників
Серед іншого, забудовник пообіцяв дотримуватися “граничних обмежень висотності проєкту, узгоджених із місцевими жителями під час громадських слухань щодо реалізації цього проєкту” (точні дані щодо висотності у відкритих джерелах відсутні, але йшлося про висоту менше 40 метрів. – ЗМІ) та внести інвестиції у розмірі 40 млн гривень в реновацію школи, яку обрала місцева громада. Втім, чи будуть виконані ці та інші обіцянки ТОВ “Керамблоки-Інвест”, наразі залишається питанням, адже такі форми декларування зобов’язань, як меморандум, в Україні ніяких гарантій не дають: тобто, фактично це всього лише “папірець” з “намірами про наміри”, який не має жодної юридичної сили.
Один із видів на ділянку станом на серпень 2023-го (фото – “ЛУН”)
Надалі, 19 вересня 2024 року, Київрада рішенням №127/9935 погодила передачу ТОВ “Керамблоки-Інвест” ділянки на вул. Кирилівській, 41-45 площею 0,32 га в оренду на 10 років для експлуатації та обслуговування будівель і споруд (кадастровий номер – 8000000000:85:311:0069). Ця земля розташована поруч із вищезгаданими 10 га і свого часу знаходилася в користування пивзаводу. На цій ділянці розташована група будівель, які належать ТОВ “Керамблоки-Інвест”, загальною площею 804,4 кв.м. При цьому, рішенням було передбачено, що в разі невиконання компанією умов вищезгаданого меморандуму, право оренди на цю ділянку має бути припиненою.
Хто збирається будувати
За даними аналітичної системи Youcontrol, столичне ТОВ “Керамблоки-Інвест” було зареєстроване у квітні 2004 року. Його керівником зазначено Олега Семеняку, кінцевим бенефіціаром – киянина Івана Бєлоусова, засновниками – ТОВ “Лікерія” (внесок до статуного капіталу – 37%), АТ “ЗНВКІФ “Ларам Сістем”, ТОВ “Раф Піпл”(по 24%) і ТОВ “Смарт Девелопмент +” (15%).
Система Youcontrol відносить “Керамблоки-Інвест” і одну з його компаній-засновників – “Смарт Девелопмент +” – до т.зв. “групи родини Баляш”. Вона об’єднує близько трьох десятків суб’єктів господарювання, зайнятих у сферах сільського господарства, будівництва, торгівлі тощо. Серед активів групи – «Оксі Банк» та мережі магазинів електроніки та побутової техніки «Шок» і «Крез». Ключовою особою вказаної групи є Олег Баляш – відомий бізнесмен та двічі депутат Львівської облради (у 2006-2009 та 2011-2015 роках, обирався від “ВО “Батьківщина” і “Партії регіонів”).
Також ще декілька років тому Баляш був очільником Львівської міської та Волинської обласної організацій партії “Наш край” (наразі ці пости де-юре займають інші особи. – ЗМІ), яка була заснована ексрегіоналами і діяльність якої була заборонена у червні 2024 року через співпрацю окремих членів цього політруху з країною-агресором.
У свою чергу, ТОВ “Раф Піпл” має відношення до групи “UFuture”, що об’єднує понад дві сотні компаній. Ця група має диверсифікований портфель активів у різних галузях – від нерухомості, інфраструктури та промисловості до інноваційних парків, відновлюваної енергетики й фармацевтики. Серед активів “UFuture” система Youcintrol виділяє міжнародний аеропорт «Київ» ім. І. Сікорського і девелоперську компанію “UDP” (зводила ТЦ “Городок”, ТРЦ “Ocean Plaza” тощо).
Ключовою особою групи “UFuture” є Василь Хмельницький, який, зокрема, відомий як народний депутат п‘яти скликань (від III до VII включно, у двох останніх обирався від “Партії регіонів”). До слова, наприкінці 2021 року ЗМІ писали, що Хмельницкий продав свою долю в “UDP” своєму бізнес-партнеру Андрію Іванову.
Що стосується АТ “ЗНВКІВ “Ларам Сістем”, то воно входить до групи “A Development”, під “прапорами” якої має зводитися ЖК “Ріхерт & Парк”. Компанії цієї групи, яких нараховується понад два десятки, займаються саме будівництвом житлової та комерційної нерухомості. Ключовою особою даної групи є бізнесмен Олексій Баранов (на колажі ліворуч).
При цьому, “A Development” також є не чужим для Василя Хмельницького. Для прикладу, за словами все того ж Олексія Баранова, він “виріс із помічника Хмельницького у його бізнес-партнера”. Так, Баранов є вихідцем із Київської інвестиційної групи, яку Василь Хмельницький разом з Андрієм Івановим, заснували наприкінці 90-х, ще до “UDP”. Наразі Баранов називає “UDP” “комфортним стратегічним інвестиційним партнером, у якому він заробив початкові гроші для розвитку свого бізнесу”. Також Олексій Баранов у 2018-2022 роках був засновником ТОВ “Таврос Констракшн” – генпідрядника будівництва ЖК “Ріхерт і Парк”.
До слова, ця ж компанія також зазначена генпідрядником будівництва багатофункціонального комплексу на вул. Івана Мазепи, 1, замовником якого є ТОВ “Войтсмарт дкон” – компанія, засновниками якої в рівних долях є суб’єкти господарювання із орбіти “Фоззі Груп” (торгово-промислова група, якою володіє бізнесмен Володимир Костельман і яка управляє мережами супермаркетів “Сільпо” та “Фора”) і ТОВ “КУА “ЮДП Ессет Менеджмент”, яке входить до орбіти Василя Хмельницького.
Компанії із орбіти Василя Хмельницького неодноразово фігурували у гучних “земельних скандалах”.
Так, у вересні 2023 року Касаційний господарський суд повернув столичній громаді дві земельні ділянки площею 375,18 га на Троєщині, на які в 2020 році зареєструвало право постійного користування СТОВ “Нова Україна”, колишні та нинішні власники та керівники якого явно пов’язані з оточенням броварського забудовника “БЗБК” і скандально Василя Хмельницького. При цьому, нагадаємо, відповідна реєстрація була здійснена без рішення Київради – завдяки приватному нотаріусу, яка внесла відповідні відомості до Держреєстру речових прав на нерухоме майно. Також незадовго до такої реєстрації Київрада включила частину цієї землі до складу новоствореного заказника “Троєщинські луки”.
Посаду директора Департаменту містобудування та архітектури КМДА з 1 листопада 2016 року обіймає Олександр Свистунов. Департамент земельних ресурсів КМДА з 29 червня 2021 року очолює Валентина Пелих (виконувала обов’язки керівника цієї структури з 2 квітня 2021 року). З 27 липня 2018 року по 1 квітня 2021 року, цим департаментом керував Петро Оленич, який з 2 квітня 2021 року обіймає посаду заступника голови КМДА та курує в Києві земельні та містобудівні питання.
Автор: Іван Кулик
Теги: Смарт ДевелопментA DevelopmentТОВ КУА ЮДП Ессет МенеджментСТОВ Нова УкраїнаООО ВойтконТОВ ВойтконСвистунов АлександрОленич ПетрПелих ВалентинаТОВ Керамблоки-ІнвестКМДАКГГАДІАМГАСИДАБІВасилий ХмельницкийХмельницкий ВасилийБаляш ОлегДядюк АлександрЗастройщикЗабудовниксудебные искиуголовное производствоКиївКиев
Коментарі:
comments powered by DisqusЗагрузка...
Наші опитування
Показати результати опитування
Показати всі опитування на сайті
