Ексрегіонал Зарубін вчергове перефарбувався та йде у мери не дивлячись на кримінальні провадження

Ексрегіонал Зарубін вчергове перефарбувався та йде у мери не дивлячись на кримінальні провадження
Захмарні тарифи на комунальні послуги, непридатна для пиття вода, кримінальне провадження щодо банкрутства ЖЕКу, скандал із сміттєвим звалищем у місті, багатоповерхівки замість парків, розвалена інфраструктура - чи такого продовження “розвитку” містяни хочуть для Боярки?
За п’ять років діяльності міського голови Олександра Зарубіна та його команди, у Боярці почало відбуватись багато процесів, які приводять не до розвитку, а до занепаду.
Політична історія
Знову Зарубін йде у мери, змінивши вже 4 політичну партію: у 2012 році він керував виборчим штабом “регіонала” Петра Мельничука, у 2014 на президентських виборах - допомагав районному штабу БПП, а на парламентських у тому ж році - керував штабом мера Бучі та екс-регіонала Анатолія Федорчука.
Вже на місцевих виборах у 2015 році він балотувався на міського голову Боярки від партії одіозного ексмера Ірпеня Володимира Карплюка “Нові обличчя”. І на виборах 2020 року, будучи діючим мером від “Нових облич”, балотується на голову ОТГ від партії Ігоря Коломойського “За майбутнє”.
Комунальні послуги
За останні п’ять років тарифи на воду та опалення для мешканців Боярки стали найвищими в Київській області. Загальна вартість централізованого водопостачання та водовідведення у Боярці становить 42,88 гривень. Для порівняння – у сусідньому місті Вишневе вартість на ці ж послуги вдвічі менша.
Якість води
Варто зазначити, що таку високу вартість на воду не можна пояснити її високою якістю. Навпаки - за даними лабораторії “Укрхіманаліз”, яка перевірила відібрані в одному з житлових будинків Боярки зразки води, вона не відповідає санітарним нормам питної води. Зокрема, рівень заліза там перевищено у майже 30 разів, а марганцю – у 10.
За даними експертів, постійне вживання води із підвищеним вміста заліза та марганцю може призвести до порушень центральної нервової системи, проблем з серцево-судинною системою, алергічних ефектів, легеневих захворювань та навіть онкології. Залізо може накопичуватись у печінці, що призводить до порушення її роботи. Окрім того, надмірний вміст заліза у воді дуже швидко виводить із ладу побутову техніку.
Збитковість ЖЕКу
За термін каденції Зарубіна, збитковість комунального господарства “Боярське головне виробниче управління житлово-комунального господарства” зросла на понад 10 млн гривень. При цьому керівництво КП купувало дорогі службові автомобілі (у 2019 році КП придбало новий автомобіль Kia Stonic вартістю 448 тис. гривень) та замінювало тендерні процедури укладанням прямих договорів зі “своїми” фірмами.
Державне бюро розслідувань України відкрило кримінальне провадження (№ 62020100000001257 у Єдиному реєстрі досудових розслідувань) щодо діяльності Боярського ЖЕКу та доведення комунального підприємства до банкрутства. Слідчі вважають, що зловживання своїм службовим становищем посадових осіб КП і Боярської міської ради довело до банкрутства стратегічно важливе підприємство. Іншими словами, розслідуються корупційні схеми керівництва міста та керівництва комунального підприємства.
Там зазначено, що посадові особи Боярської міської ради та КП "Боярське головне виробниче управління житлово-комунального підприємства Боярської міської ради Києво-Святошинського району Київської області", за корупційної підтримки службових осіб правоохоронних органів районного та обласного рівня, зловживаючи своїм службовим становищем довели до банкрутства вказане комунальне підприємство та вчинили розтрату державних коштів, чим спричинили тяжкі наслідки.
Цікаво, що КП було зареєстровано у 2006 році із статутним капіталом у понад 13 млн гривень. Наразі підприємство дотаційне і незважаючи, що кожного місяця боярчани сплачують йому мільйони гривень, аварійного житлового фонду стає все більше, дахи не ремонтуються, під’їзди занедбані, прибудинкові території не придбані і навіть банальні лампочки для під’їздів мешканці змушені купувати за власний рахунок.
Продаж Боярки під сміття
Вже півроку продовжується судова тяганина довкола розміщення приватного сміттєзвалища в межах міста Боярка. Причиною стало те, що Олександр Зарубін забажав продати під сміттєсортувальну станцію більше 8 гектарів боярської землі. Крім того, сума, на яку згодився Зарубін, вдвічі менше від ринкової.
Жодних обговорень щодо цього Зарубін не провів із громадськістю. При цьому позиція громади залишається незмінна - боярську землю не можна продавати, тим паче фірмі із малим статутним капіталом, без працівників і обладнання. Силами небайдужих громадських діячів, суд призупинив рішення міської ради та заборонив проводити будь-які роботи на земельній ділянці. Однак, цілком ймовірно, що Зарубін й далі намагатиметься довести цю справу до кінця.
Екологія
А поки Зарубін відстоює свої інтереси щодо продажу землі громади, Боярка продовжує потопати у смітті, адже за п’ять років міській владі так і не вдалось налагодити централізоване вивезення сміття.
Великою екологічною загрозою для міста є несанкціоноване сміттєзвалище на території підприємства “Декоративні культури”. Тоннами туди вивозить крупногабаритне сміття місцевий ЖЕК, прикриваючись словом “тимчасово”.
Корупція та забудови
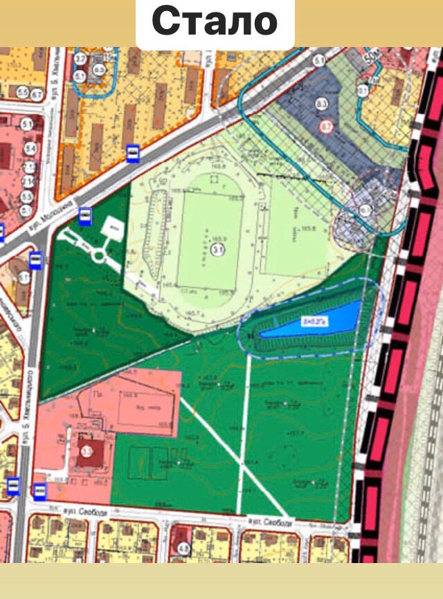
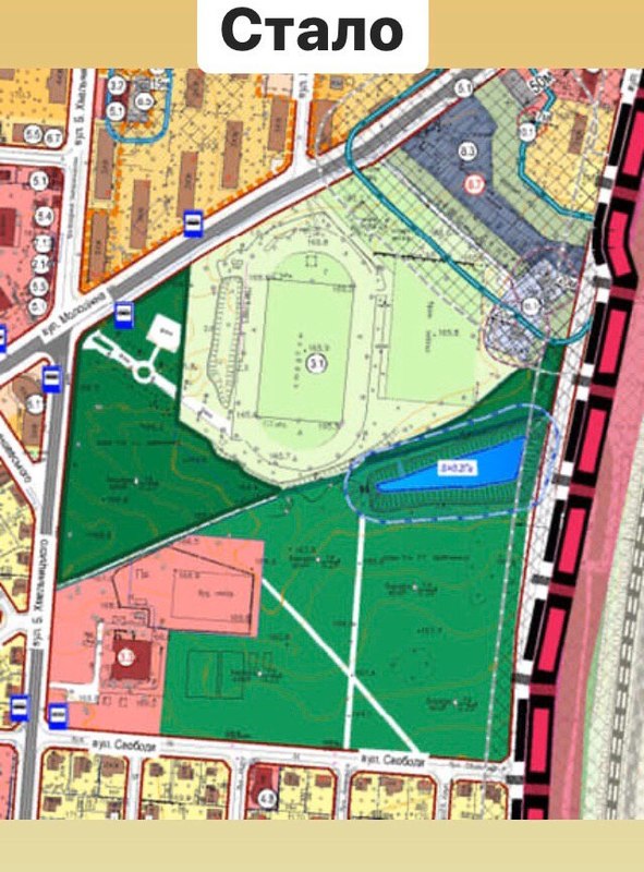
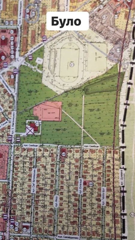
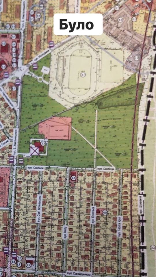
Коли Зарубін прийшов до влади у 2015 році, то обіцяв зберегти усі парки міста. Новим генеральним планом, який Зарубін із командою затвердили під кінець каденції, передбачає також забудову 3,5 га парку Шевченка.
Звісно, міський голова намагається “відхреститись” від цієї забудови та перекласти відповідальність на “попередників”, однак, важка будівельна техніка в’їхала на територію парка зараз, коли він є міським головою. До того ж. саме Зарубін видав забудовнику технічні умови та всі необхідні дозволи для початку будівництва.
І поки продовжується судова тяганина, елітні квартири у житловому комплексі із трьох багатоповерхівок від забудовника “Вишнева оселя” у парку Шевченка вже виставили на продаж.
Також у 2018 році він видав містобудівні умови для будівництва багатоповерхового будинку по вулиці Соборності, 38. Такий дозвіл отримала родичка його кума, Оксана Алімова.
Інфраструктура
І поки в Боярці жахливі дороги, брудні вулиці, проблеми зі сміттям та відсутня якісна вода - міська рада продовжує витрачати мільйони гривень на заробітні плати, преміювання та організацію своєї діяльності.
У квітні, коли був пік карантинних обмежень та більшість боярчан не мали роботи через пандемію, посадові особи продовжували збагачуватись за рахунок їхніх податків.
Так, Зарубін, крім основної зарплати, отримав премію у 20 тисяч гривень та ще 6,5 тисяч персональної надбавки. В той же місяць його перший заступник отримав 34 тисячі гривень, керуюча справами - 47 тисяч, а секретар ради - 28 тисяч. Заступниця Зарубіна із соціальних питань отримала 56 тисяч гривень.
Теги: За майбутнєдепутатська група За майбутнєкандидатиВиборимісцеві вибориЖЕКВодаОпаленняТарифиКарплюк ВолодимирФедорчук АнатолийМельничук ПетрЗарубін ОлександрБоярка
Коментарі:
comments powered by DisqusЗагрузка...
Наші опитування
Показати результати опитування
Показати всі опитування на сайті
